2620 Albertslund

Roholmsvej 10

  • Areal 2.457 m2
  • Leje pr. m2 800 kr.
  • Månedlig leje 163.800 kr.

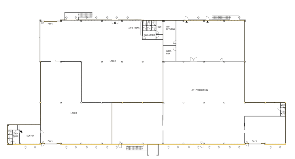
Funktionelt lager/produktion med tre porte og kontorer!

Lejemålet på Roholmsvej vil efter renovering være klar til indbyde til brug som lager eller lettere produktion samt kontor. Her er adgang via tre porte og særskilt adgang til kontor. Her får man 2.457 m² med en fleksibel indretning, der kombinerer store regulære lager/showroom/produktionsområder med separate kontorer og toilet- samt spisefaciliteter.

Lejemålet vil blive nyistandsat med blandt andet nye epoxybelagte gulve, nymalet, køkken, badefaciliteter, toiletter og omklædningsmuligheder. Kontoret fremstår lyst og funktionelt, og der er rigelig parkeringsplads på ejendommen – herunder opladning til elbiler.

Billederne er inspirationsbilleder af tilsvarende lejemål som kan forventes efter ombygningen.

Med en praktisk beliggenhed i Albertslund, gode tilkørselsforhold og en indretning, der gør det let at kombinere lager og kontor, er dette lejemål ideelt for virksomheder med behov for både funktionalitet og sikkerhed.

Nøgleinformation

Adresse

Roholmsvej 10
2620 Albertslund

Leje pr. m2

800 kr.

Årlig leje

1.965.600 kr.

Mdr. leje

163.800 kr.

Depositum

6 mdrs. leje

Areal

2.457 m2

Lejeregulering

NPI - min. 3,00%

Moms

Ja

A conto drift pr. m2

160 kr.

A conto varme pr. m2

65 kr.

Kom fra A til B

Ruten til dit nye kontor

Roholmsvej 10, 2620 Albertslund

Hvor langt er der?

Udforsk området