Funktionelt lager/produktion med port og kontor!
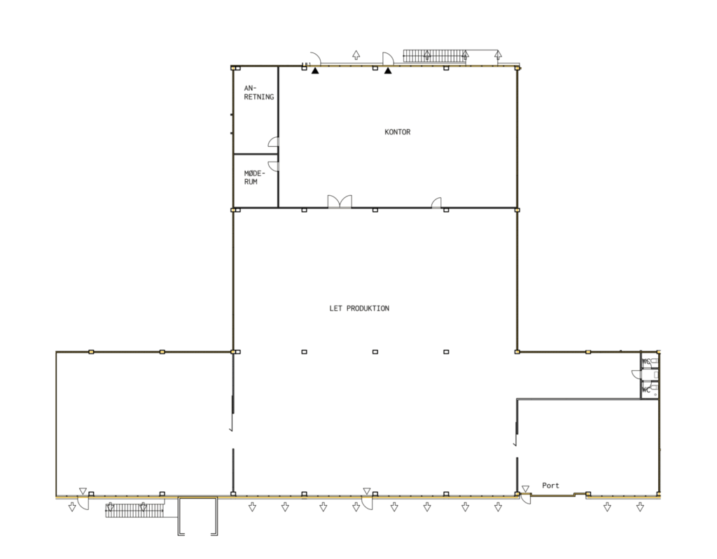
Lejemålet på Roholmsvej vil efter renovering være klar til indbyde til brug som lager eller lettere produktion samt kontor. Her får man 1.248 m² med en fleksibel indretning, der kombinerer store regulære lager/showroom/produktionsområder med et separat kontor og toilet- samt spisefaciliteter.
Lejemålet vil blive nyistandsat med blandt andet nye epoxybelagte gulve, nymalet, køkken, badefaciliteter, toiletter og omklædningsmuligheder. Kontoret fremstår lyst og funktionelt, og der er rigelig parkeringsplads på ejendommen – herunder opladning til elbiler.
Billederne er inspirationsbilleder af tilsvarende lejemål som kan forventes efter ombygningen.
Lejemålet har mulighed for udlejes som 2.457 m2, da tilstødende lejemål ligeså er under renovering og udlejning.
Med en praktisk beliggenhed i Albertslund, gode tilkørselsforhold og en indretning, der gør det let at kombinere lager og kontor, er dette lejemål ideelt for virksomheder med behov for både funktionalitet og sikkerhed.
Nøgleinformation
Adresse
Roholmsvej 14C
2620 Albertslund
Leje pr. m2
800 kr.
Årlig leje
998.400 kr.
Mdr. leje
83.200 kr.
Depositum
6 mdrs. leje
Areal
1.248 m2
Lejeregulering
NPI - min. 3,00%
Moms
Ja
A conto drift pr. m2
160 kr.
A conto varme pr. m2
65 kr.
Kom fra A til B
Ruten til dit nye kontor
Del